ALOHA HIGH SCHOOL - AUTO TECH CTE
beaverton school district
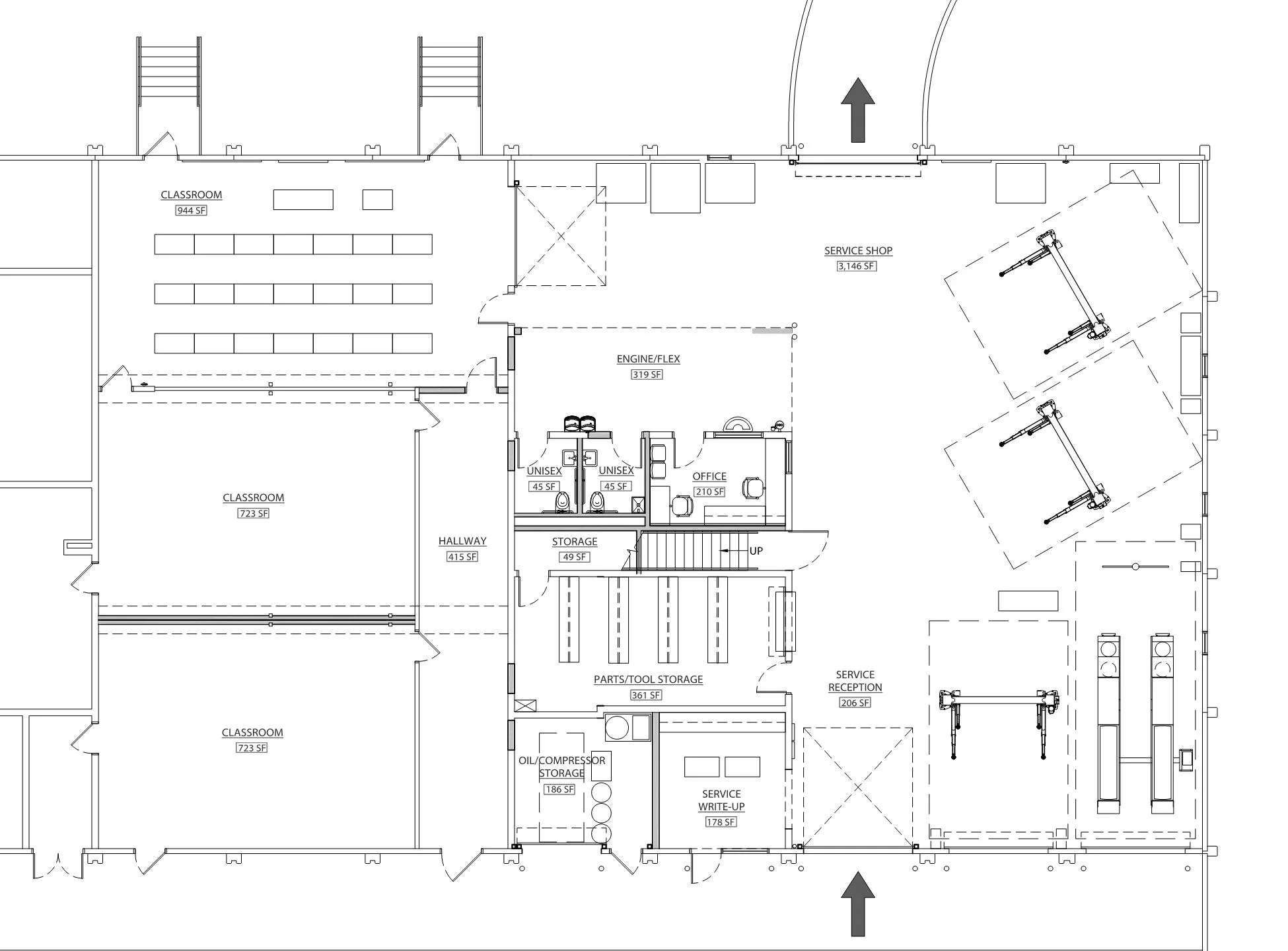
Area of Work: 9,310 S.F. Building Size: 243,416 S.F.
Completed: August 2018
Axis Design Group was selected by the Beaverton School District to renovate and expand the existing Auto Tech Career and Technical Education program space at Aloha High School. The scope of work included redesigning the existing auto tech service department to allow vehicles to safely enter and exit the shop, a new service write-up area with trophy display, oil storage, staff office, tech parts, parts storage, and ADA restrooms.
The mezzanine space was structurally modified to allow an existing classroom to expand directly into the shop with new overhead door access. The shop ceiling was removed and the existing roof structure was exposed and painted. New exterior windows and LED lighting were added to improve light levels. New perimeter walls with a STC rating of 60+ has created acoustic isolation for the adjacent classrooms. The project also included modifications to existing mechanical, electrical, plumbing and fire control systems, a new storm water management facility and irrigation system, as well as new high-security doors to the exterior that prevent unauthorized access and ensure safety to staff and students.
